Évaluation sauvegardée !
Vous serrez le seul/la seule à le voir
Commentaire sauvegardé !
Ajoutez votre évaluation et/ou un commentaire pour cette annonce. Vous seul(e) le verrez

Location bureau avec chauffage parking dans Tres Torres Barcelona

  • 4.234 m2
  • 9,41 €/m2

INVERSIONESBCN REAL ESTATE BOUTIQUE presenta el equipamiento sanitario en Bonanova, un espacio para desarrollar consultorios médicos y/o una clínica ambulatoria en la zona alta de Barcelona. La mejor ubicación para implantar tu equipamiento.

Situado en la antigua sede de la Clínica Dexeus, actualmente SAR Quavitae, la zona es conocida por albergar consultorios médicos y quirófanos de todo tipo. Una de sus mejores características es su excelente ubicación.

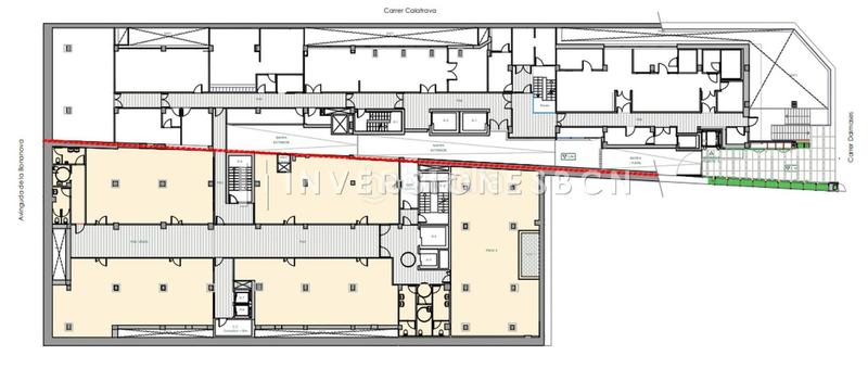
El equipamiento sanitario, con una superficie de más de 4.000 m² construidos, está dividido en 4 plantas, conectadas por 2 ascensores y con dos entradas principales: una por Bonanova, y otra en el chaflán de Calatrava con Dalmases. También dispone de acceso de ambulancias.

El estado actual del local permitirá al arrendatario adecuarlo a las necesidades del uso sanitario idóneo para su actividad. Las instalaciones tienen la capacidad de cubrir las distintas especialidades de medicina, con espacios adaptados para consultorios médicos y/o quirófanos de día: traumatología, dermatología, oftalmología, etc.

Edificio ubicado estratégicamente en la ciudad de Barcelona, ya que en la zona de influencia conviven los principales y más prestigiosos grupos médicos y hospitalarios de Barcelona, con ofertas de servicios integrados y de gran calidad.

A nivel de comunicaciones y transporte público, el edificio tiene un fácil acceso desde cualquier zona de la ciudad y alrededores. Está situada a 500 metros de la boca sur del túnel de Vallvidrera y de la salida 9 de la Ronda de Dalt; autobuses urbanos líneas 75 y 123 y FGC, Estación de Sarrià (L6 y L12).

6 meses de fianza
IBI y Gastos de Comunidad a parte 2.694,64 euros mensuales
IVA no incluida en el precio.

¡Disponible ya!

Si quereis mas informaciones o hacer una visita podeis contactar a Daniel al

dernière modification

Distribution

  • Surface 4234 m2
  • Terrasse 17 m2

Caractéristiques Générales

  • Chauffage
  • Place parking
  • Climatisation
  • Année de construction 2013
  • Certificat énergétique :
    Consumo:
    C
    322 kW h m2 / año
    Emisiones:
    B
    64 kg CO2 m2 / año

Équipement communautaire

  • Ascenseur
Annonce: 32305000000765

Lieu

Tres Torres Pasaje BONANOVA

Naviguez sur la carte en cliquant dessus
Nous vous prévenons lorsque nous aurons une annonce comme celle-ci ? Créez votre alerte et nous vous préviendrons par courrier électronique dès qu´il y aura de nouvelles annonces ou lorsqu´elles seront modifiées
 

Contacter INVERSIONES GRUP

Référence de l´annonce habitaclia/IBCN00969:

Vous verrez le numéro de téléphone après que vous ayez envoyé vos coordonnées à l´annonceur pour qu´il puisse vous répondre.
Le numéro de téléphone s´affichera après avoir contacté
Envoi en cours…