Évaluation sauvegardée !
Vous serrez le seul/la seule à le voir
Commentaire sauvegardé !
Ajoutez votre évaluation et/ou un commentaire pour cette annonce. Vous seul(e) le verrez

Location local commercial dans Centre Vic

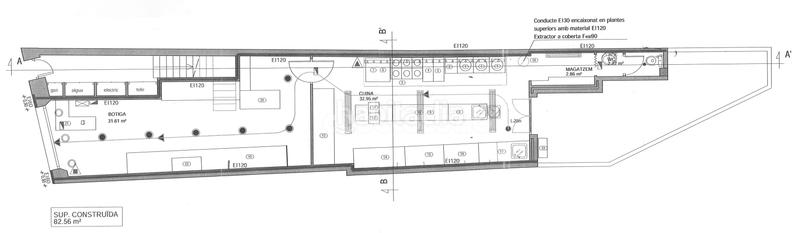
  • 82 m2
  • 13,41 €/m2

Local en lloguer al centre de Vic!

Magnífic local comercial en lloguer al centre de Vic. Consta de 82,56 m² construïts, perfectament distribuïts i ideals per a activitats de restauració, obrador o comerç amb manipulació d’aliments.

A la part frontal, disposa d’una àmplia zona de botiga de 31,61 m², amb accés directe des del carrer i excel·lent visibilitat comercial, perfecta per a exposició, taulell de venda o zona de degustació.

La part central del local acull una funcional i espaiosa zona de cuina/obrador de 32,95 m², distribuïda en àrees de preparació, cocció i rentat, i equipada amb instal·lacions de gas, aigua, electricitat, telecomunicacions i conducte d’extracció fins a la coberta, fet que facilita la implantació immediata d’activitats gastronòmiques.

A la zona posterior hi trobem un pràctic magatzem de 2,86 m² i un bany de 2,22 m².

Es tracta d’un local molt versàtil, amb totes les instal·lacions resoltes, ideal per iniciar o ampliar un negoci. Està situat en un dels carrers amb més activitat de la ciutat, el carrer Gurb de Vic, una zona molt cèntrica i comercial, amb elevat trànsit de vianants que garanteix una excel·lent visibilitat i rendiment per a qualsevol tipus de negoci.

Informi's sense compromís!

dernière modification

Distribution

  • Surface 82 m2

Caractéristiques Générales

  • Certificat énergétique :
    Consumo:
    G
    999 kW h m2 / año
    Emisiones:
    G
    999 kg CO2 m2 / año
Annonce: 10354004402050

Lieu

Centre Gurb

Naviguez sur la carte en cliquant dessus
Nous vous prévenons lorsque nous aurons une annonce comme celle-ci ? Créez votre alerte et nous vous préviendrons par courrier électronique dès qu´il y aura de nouvelles annonces ou lorsqu´elles seront modifiées
 

Contacter CODOLGESTIO

Référence de l´annonce habitaclia/V02267:

Vous verrez le numéro de téléphone après que vous ayez envoyé vos coordonnées à l´annonceur pour qu´il puisse vous répondre.
Le numéro de téléphone s´affichera après avoir contacté
Envoi en cours…