Favorito y comentario
Location local commercial dans Fort Pienc Barcelona
Caractéristiques principales
- 211 m2
- 12,32 €/m2
Informations détaillées
Spa en traspaso en Passeig Sant Joan
TRASPASO de 295.000eu Spa-Urbano Wellness con terraza y piscina, situado en Eixample Dreta cerca de Gran Via y de Plaza Tetuan.
Spa urbano en funcionamiento con 2 licencias, una de Practica de deporte en piscina publica cubierta y otra de Salón de Belleza sin tratamientos médicos. Ofrece actividades deportivas, Aquagym, Fitness, Fisioterapia, Osteopatía, Rehabilitación en agua, Masajes, tratamientos y actividades de bienestar y salud. Entrenamientos personales y en grupos así como actividades en al agua para niños. También asesoramiento en dietética y nutrición
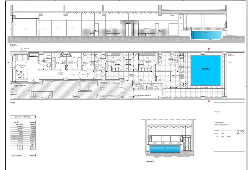
El local tiene una fachada de 5 metros y dispone de una superficie de 211,50m2c distribuidos en Planta Baja, además de un Patio-Terraza posterior de 130 m2c.
El local dispone de dos huecos en fachada y se organiza con una zona de recepción con sala de espera, sala de fitness, 2 cabinas usadas como sales de masaje y de tratamiento, 3 vestuarios con ducha (hombres, mujeres y entrenadores) y lavabos con un aseo adaptado a minusválidos, además de piscina cubierta de 30,25mclimatizada y equipada de las ultimas tecnologías
Local en una calle significativa del Eixample con un alto potencial comercial y con un tráfico peatonal medio-alto. El local ha sido reformado en 2016 y se encuentra en un muy buen estado de conservación, tanto a nivel estructural como de acabados e instalaciones, apto para continuar el negocio actual con una buena facturación.
Contrato de alquiler de 10 años con una extensión de 5 años más (hasta el 2030)
Edificio residencial modernista, ubicado en barrio de Eixample Dreta, zona con un alto potencial comercial. Barrio muy céntrico y bien comunicado con Metro y con varios autobuses urbanos. Zona comercial activa y cosmopolita muy atractiva, con ofertas culturales, con tiendas, hoteles, equipamientos, bares y restaurantes muy diversos.
English:
TRANSFER of 295,000eu Spa-Urban Wellness with terrace and pool, located in Eixample Dreta near Gran Via and Plaza Tetuan.
Urban spa in operation with 2 licenses, one for the practice of sports in a covered public pool and the other for a Beauty Salon without medical treatments. It offers sports activities, Aquagym, Fitness, Physiotherapy, Osteopathy, Rehabilitation in water, Massages, treatments and wellness and health activities. Personal and group training as well as water activities for children. Also advice on dietetics and nutrition
The premises have a 5-meter façade and have an area of ??211.50 m2c distributed on the ground floor, as well as a rear patio-terrace of 130 m2c.
The premises have two openings in the facade and are organized with a reception area with a waiting room, a fitness room, 2 cabins used as massage and treatment rooms, 3 changing rooms with showers (men, women and trainers) and toilets with a toilet adapted for the disabled, as well as a 30.25mheated indoor pool equipped with the latest technology
Premises on a significant street in the Eixample with high commercial potential and medium-high pedestrian traffic. The premises have been renovated in 2016 and are in a very good state of conservation, both structurally and in terms of finishes and facilities, suitable for continuing the current business with goog turnover.
10-year rental contract with an extension of 5 more years (until 2030)
Modernist residential building, located in the Eixample Dreta neighborhood, an area with high commercial potential. Very central neighborhood and well connected with the Metro and with several urban buses. Very attractive active and cosmopolitan commercial area, with cultural offers, with very diverse shops, hotels, facilities, bars and restaurants.
Català:
TRASPÀS de 295.000eu Spa-Urbano Wellness amb terrassa i piscina, situat a Eixample Dreta prop de Gran Via i de Plaça Tetuan.
Spa urbà en funcionament amb 2 llicències, una de Pràctica d'esport a piscina pública coberta i una altra de Saló de Bellesa sense tractaments mèdics. Ofereix activitats esportives, Aquagym, Fitness, Fisioteràpia, Osteopatia, Rehabilitació en aigua, Massatges, tractaments i activitats de benestar i salut. Entrenaments personals i en grups així com activitats a l'aigua per a nens. També assessorament en dietètica i nutrició
El local té una façana de 5 metres i disposa d'una superfície de 211,50m2c distribuïts a la planta baixa, a més d'un pati-terrassa posterior de 130 m2c.
El local disposa de dos buits a façana i s'organitza amb una zona de recepció amb sala d'espera, sala de fitness, 2 cabines usades com a sals de massatge i de tractament, 3 vestidors amb dutxa (homes, dones i entrenadors) i lavabos amb un lavabo adaptat a minusvàlids, a més de piscina coberta de 30,25mclimatitzada i equipada de les últimes tecnologies
Local en un carrer significatiu de l'Eixample amb un alt potencial comercial i amb un trànsit de vianants mitjà-alt. El local ha estat reformat el 2016 i es troba en un molt bon estat de conservació, tant a nivell estructural com d'acabats i instal·lac
dernière modification
Distribution
- Surface 211 m2
Caractéristiques Générales
- Année de construction 2014
Galerie
Lieu
Fort Pienc
