Favorito y comentario
Location local commercial dans gonzalez besada 10 dans Oviedo
Caractéristiques principales
- 70 m2
- 10,00 €/m2
Informations détaillées
LOCAL GONZALEZ BESADA 10.OVIEDO
Buscas un local en una de las mejores zonas comerciales de Oviedo?
si quieres tener tu propio negocio en una de las zonas más comerciales y cotizadas de Oviedo (Asturias).
Estuvo funcionando hasta hace poco como carnicería y con rentabilida.
Con un parking enfrente.
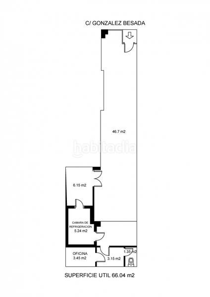
Tiene una superficie útil de 70 metros cuadrados.
Al final de las fotos hay un plano y un video donde puedes verlo al detalle.
Tiene un escaparate a la calle González Besada.
Adecuado ya para carnicería, frutería, panadería.
Con estanterías, vitrinas, máquinas de pesaje y mostradores.
Actualmente tiene luz y agua.
Listo para entrar y ubicado en una zona de mucho paso y con gran actividad comercial.
Dispone de zona de despiece, un pequeño despacho y un aseo.
Llámanos ya y lo vemos.
dernière modification
Distribution
- Surface 70 m2
Caractéristiques Générales
- Sans meubler
- Année de construction 1972
Galerie
Lieu
Auditorio - Seminario - Parque de Invierno GONZALEZ BESADA 10