Favorito y comentario
Location local commercial dans josé vidal 18 dans Carcaixent
Caractéristiques principales
- 1.200 m2
- 3 salles de bain
- 2,92 €/m2
Informations détaillées
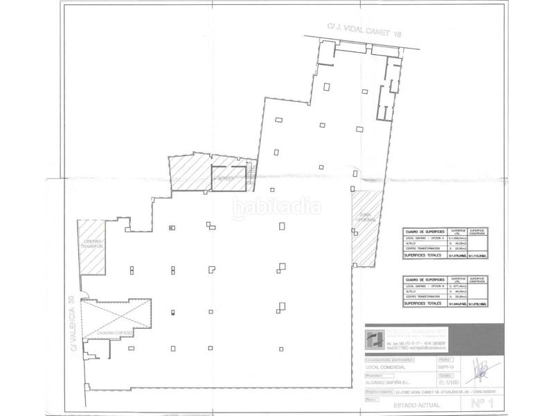
Local en alquiler en Carcaixent
Si necesitas un espacio amplio y flexible para llevar a cabo tu proyecto, esta es tu oportunidad. Un local que puedes alquilar ajustado exactamente a tus necesidades, ¡ni más ni menos!
La propiedad ofrece casi 1.000 m², que puedes alquilar completos o dividir según lo que requieras. El espacio está distribuido en una amplia estancia de aproximadamente 1.000 m², un altillo de 20 m² utilizado como centro de transformación y otro altillo de 40 m².
Ubicado en una de las calles principales de la localidad de Carcaixent, el local garantiza una gran visibilidad, con un constante paso de personas a lo largo del día.
Carcaixent, un municipio valenciano en la comarca de la Ribera Alta, cuenta con más de 20.500 habitantes. La ciudad dispone de excelentes conexiones de transporte, incluyendo la estación de cercanías, un eficiente servicio de autobuses urbanos e interurbanos, y un fácil acceso a múltiples carreteras.
¡Cualquier cosa que imagines puede hacerse realidad en este local!
dernière modification
Distribution
- Surface 1200 m2
Caractéristiques Générales
- Année de construction 1983
- Exempter
Galerie
Lieu
José Vidal 18
