Évaluation sauvegardée !
Vous serrez le seul/la seule à le voir
Commentaire sauvegardé !
Ajoutez votre évaluation et/ou un commentaire pour cette annonce. Vous seul(e) le verrez

Appartement avec chauffage dans Monte Alto - Zalaeta - Atocha Coruña (A)

Rúa Gerión

  • 85 m2
  • 2 hab.
  • 2 salles de bain
  • 3.165 €/m2

Fantástico piso a ESTRENAR en MONTE ALTO.

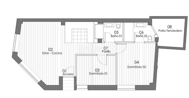
Os presentamos esta amplia planta baja de 78m2 más 6m2 de terraza, con preciosos acabados a estrenar, que cuenta con dos dormitorios uno de ellos con baño en suite y acceso directo a un patio interior; un segundo cuarto de baño y un amplio salón comedor exterior con cocina americana, completamente equipada y amueblada con altas calidades.

Entre sus acabados, suelos de tarima AC4,ventanas climalit de 4+4,calefacción eléctrica individual, armarios empotrados suelo-techo, acumulador de agua 100 litros, electrodomésticos TEKA y lavavajillas empotrado.

En una de las zonas más demandas del momento con todos los servicios al alcance; comercios, supermercados, centros deportivos y educativos, paradas de autobús… y que además está a pocos metros de las playas de Matadero y Orzán.

(Con la posibilidad de negociar la compra de algún mueble, no incluídos en el precio de venta)

¿Es lo que buscas?

Nuestro lema es la excelencia y trabajamos día a día para mantenerla. Hacemos la experiencia de compra o venta de un inmueble única para cada uno de nuestros clientes y propietarios. Bienvenidos a la singularidad, bienvenidos a Incor.

OFRECEMOS SOLUCIONES, NO PROMESAS
Encuentra más en

dernière modification

Distribution

  • 2 Chambres
  • Surface 85 m2
  • 2 salles de bain

Caractéristiques Générales

  • Chauffage
  • Sans place parking
  • Sans climatisation
  • Année de construction 2025
  • Certificat énergétique :
    Consumo:
    G
    999 kW h m2 / año
    Emisiones:
    G
    999 kg CO2 m2 / año

Équipement communautaire

  • Sans ascenseur
Annonce: 34045000001088

Lieu

Monte Alto - Zalaeta - Atocha Rúa Gerión

Naviguez sur la carte en cliquant dessus
269.000 € Prix de l´annonce
4.502 €/m2€/m2 distrito
3.165 €/m2€/m2 de l´annonce
30% moins cher que la moyenne*
Voir évolution €/m2 dans Coruña (A) (Monte Alto - Zalaeta - Atocha)
Nous vous prévenons lorsque nous aurons une annonce comme celle-ci ? Créez votre alerte et nous vous préviendrons par courrier électronique dès qu´il y aura de nouvelles annonces ou lorsqu´elles seront modifiées
 

Contacter INCOR

Référence de l´annonce habitaclia/E1861:

Vous verrez le numéro de téléphone après que vous ayez envoyé vos coordonnées à l´annonceur pour qu´il puisse vous répondre.
Le numéro de téléphone s´affichera après avoir contacté
Envoi en cours…