Visite virtuelle
Évaluation sauvegardée !
Vous serrez le seul/la seule à le voir
Commentaire sauvegardé !
Ajoutez votre évaluation et/ou un commentaire pour cette annonce. Vous seul(e) le verrez

Appartement avec chauffage parking dans Fátima Vigo

  • 253 m2
  • 6 hab.
  • 3 salles de bain
  • 2.075 €/m2

?? ?? ?????????????????? ???????? ???? ??Í?? ???????????? ??


DOS VIVIENDAS INDEPENDIENTES o POSIBILDAD DE HACER UN IMPRESIONANTE DUPLEX

FABULOSAS vistas a la ria, TERRAZA y GARAJE

Justo enfrente de la nueva estación de tren y CENTRO COMERCIAL VIALIA, con parada de autobús y de taxis enfrente del portal.

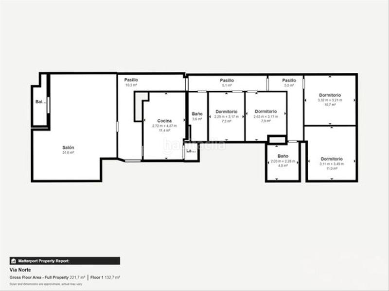
Se trata de una amplia novena planta de 126 m2 lista para entrar a vivir.

Y a mayores el ático justo encima, del mismo tamaño, con fantástica terraza descubierta con impresionantes vistas directas al mar.

El piso 9° cuenta con 4 habitaciones, (dos con armarios empotrados), un luminoso salón con balcón y fantásticas vistas directas al mar, amplia cocina independiente, equipada y amueblada, con su zona de lavadero y dos cuartos de baños completos con plato de ducha.

El ático nada más acceder cuenta con una zona de estar con salida a terraza con maravillosas vistas panorámicas de Vigo y su fabulosa ria, al que se le podria incorporar una cocina estilo americana, ya que dispone de conexiones, un cuarto de baño con una pequeña bañera, un dormitorio pequeño y una espaciosa estancia trasera con pequeñas ventanas al exterior.
Tiene capacidad y un gran potecial para convertirlo en moderno LOFT o APARTAMENTO con TERRAZA

Tambien cabe la posibilidad de comunicar ambas viviendas con escaleras interiores y crear un impresionante DÚPLEX al gusto de sus necesidades.

El precio incluye una buena plaza de garaje en el mismo edificio, a la cual se accede saliendo por el portal,

El edificio ha sido totalmente renovado y tiene un moderno portal nuevo.

Una de las zonas con mayor demanda, que cuenta con todos los servicios necesarios para el día a día, gracias a su proximidad al centro de Vigo y al mayor centro comercial VIALIA, con la nueva estación de tren, parada de taxis, supermercado, parque infantil, etc.

No dude en contactar para más información o visitar.

RE/MAX FINANCE A través de convenios nacionales con las principales entidades bancarias permite que nuestros clientes disfruten de las mejores opciones de financiación del mercado, con condiciones especiales y ventajosas, recibiendo un trato "prime" que nos diferencia".

Nota: este anuncio es meramente informativo y carece de valor contractual, puede contener algún error involuntario.

dernière modification

Distribution

  • 6 Chambres
  • Surface 253 m2
  • 3 salles de bain
  • Cuisine Type Office: No

Caractéristiques Générales

  • Chauffage
  • Place parking
  • Sans climatisation
  • Année de construction 1972
  • À proximité des transports en commun
  • Certificat énergétique :
    Consumo:
    G
    999 kW h m2 / año
    Emisiones:
    G
    999 kg CO2 m2 / año

Équipement communautaire

  • Ascenseur
Annonce: 45891000007100

Lieu

Fátima Rúa Vía Norte

Naviguez sur la carte en cliquant dessus
525.000 € Prix de l´annonce
2.933 €/m2€/m2 distrito
2.075 €/m2€/m2 de l´annonce
29% moins cher que la moyenne*
Voir évolution €/m2 dans Vigo (Centro Urbano)
Nous vous prévenons lorsque nous aurons une annonce comme celle-ci ? Créez votre alerte et nous vous préviendrons par courrier électronique dès qu´il y aura de nouvelles annonces ou lorsqu´elles seront modifiées
 

Contacter Marta Gamallo González

Référence de l´annonce habitaclia/09914:

Vous verrez le numéro de téléphone après que vous ayez envoyé vos coordonnées à l´annonceur pour qu´il puisse vous répondre.
Le numéro de téléphone s´affichera après avoir contacté
Envoi en cours…