Évaluation sauvegardée !
Vous serrez le seul/la seule à le voir
Commentaire sauvegardé !
Ajoutez votre évaluation et/ou un commentaire pour cette annonce. Vous seul(e) le verrez

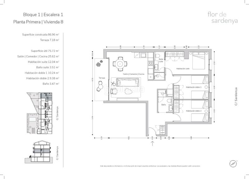
Appartement 87m2 dans carrer de sardenya 14 dans El Pedró Palamós

Carrer de Sardenya 14

  • depuis 87 m2
  • 3 hab.
  • 2 salles de bain
  • 5.517 €/m2
FLOR DE SARDENYA
Appartient à la promotion

FLOR DE SARDENYA

Esta promoción tiene 6 tipos de logements Voir promotion

ESP:

Descubre la magia de la vida en el corazón del Casco Antiguo de Palamós con nuestra espectacular nueva promoción de obra nueva. Dos imponentes bloques, 31 lujosos apartamentos y 38 plazas de aparcamiento te esperan en este rincón único de la Costa Brava. Inspirados en el estilo mediterráneo, los edificios se visten con colores claros y un diseño minimalista que se integra armoniosamente con el encanto histórico de la ciudad. Todo ello con unos acabados de una inmejorable calidad y un diseño que cuida hasta el último detalle..



Características Principales:

Ubicación Inigualable: Situados en el punto más alto del Casco Antiguo, nuestros edificios proporcionan una agradable sensación de tranquilidad i confort, en la que las viviendas dúplex dispondrán también de unas bonitas vistas a la bahía de Palamós. Con una distribución en forma de L, rodean una elegante zona comunitaria privada con piscina, zonas de sombra y jardines exquisitamente ajardinados.
Espacios Exteriores Únicos: Disfruta del sol mediterráneo durante el día en las amplias terrazas y jardines privativos de los apartamentos en planta baja. Las balconeras deslizantes de pared a pared conectan perfectamente el interior con el exterior, permitiendo que la luz natural y la brisa marina llenen tu hogar.
Diseño Interior Sofisticado: Los apartamentos y dúplex presentan amplios salones con vistas a la zona ajardinada con piscina o al mar, dormitorios dobles de superficie generosa y, en los dúplex, una vista impresionante de la bahía de Palamós y las montañas. Las cubiertas con vigas de madera natural crean una atmósfera única de confort.
Equipamiento de Calidad: Cada vivienda se entrega con una cocina totalmente equipada, incluyendo frigorífico y lavavajillas empotrados, y baños completos con muebles de diseño. La atención a los detalles garantiza que cada espacio sea funcional y elegante.
Aparcamiento y Acceso Conveniente: Amplias plazas de aparcamiento con acceso directo a las viviendas mediante

dernière modification

Distribution

  • 3 Chambres
  • Surface 87 m2
  • Balcon / Terrasse 7 m2
  • 2 salles de bain
  • Cuisine Type Office

Caractéristiques Générales

  • Chauffage
  • Sans place parking
  • Climatisation
  • Étage numéro 1
  • Certificat énergétique :
    Consumo:
    A
    1 kW h m2 / año
    Emisiones:
    A
    1 kg CO2 m2 / año

Équipement communautaire

  • Ascenseur
  • Piscine Communautaire
Annonce: 8022004351642

Lieu

El Pedró Carrer de Sardenya 14

Naviguez sur la carte en cliquant dessus
480.000 € Prix de l´annonce
3.613 €/m2€/m2 población
5.517 €/m2€/m2 de l´annonce
Voir évolution €/m2 dans Palamós
Nous vous prévenons lorsque nous aurons une annonce comme celle-ci ? Créez votre alerte et nous vous préviendrons par courrier électronique dès qu´il y aura de nouvelles annonces ou lorsqu´elles seront modifiées
 

Appartient à la promotion FLOR DE SARDENYA

Palamós - Carrer de Sardenya, 14
Promoción FLOR DE SARDENYA Palamós - Carrer de Sardenya, 14 depuis 269.000 € Voir promotion
Autres types de logement de cette promotion

Contacter NOU HABITAT

Référence de l´annonce habitaclia/11000.8:

Vous verrez le numéro de téléphone après que vous ayez envoyé vos coordonnées à l´annonceur pour qu´il puisse vous répondre.
Le numéro de téléphone s´affichera après avoir contacté
Envoi en cours…