Évaluation sauvegardée !
Vous serrez le seul/la seule à le voir
Commentaire sauvegardé !
Ajoutez votre évaluation et/ou un commentaire pour cette annonce. Vous seul(e) le verrez
250.000 € Prévenez-moi si le prix baisse
a baissé 15.000 €

Bâtiment à usage industriel dans El Juncal - Vallealto Puerto de Santa María (El)

  • 936 m2
  • 267 €/m2

¡Encuentra tu nave industrial ideal en El Puerto de Santa María con nosotros!

Ofrecemos en exclusiva la magnífica oportunidad de adquirir en propiedad esta nave industrial con una superficie de 936m², ubicado en la localidad de El Puerto de Santa María, provincia de Cádiz. Dispone de buenos accesos, maniobrabilidad y está bien comunicada.

Esta nave industrial es ideal para empresas que buscan expandir sus operaciones en un espacio amplio y bien ubicado, con excelente conectividad, esta nave es perfecta para diversos tipos de industrias.

Cuenta con áreas de almacenamiento y espacios para producción, lo que permite la instalación de maquinaria de gran tamaño.

Situado en una zona industrial, con fácil acceso a las principales vías de comunicación, autopistas y carreteras nacionales.

Proximidad a proveedores, centros logísticos, estaciones de servicio y restaurantes, facilitando las operaciones diarias.

Esta nave industrial es una oportunidad única para adquirir o alquilar un espacio que combine funcionalidad, modernidad y una ubicación estratégica. Perfecto para empresas que buscan optimizar sus operaciones y crecer en un entorno adecuado.

¿Quieres más información de esta nave industrial?

No dudes en ponerte en contacto con nosotros. Visita sin compromiso, sin comisiones de intermediación. Más información rellenando el formulario de contacto o por teléfono. Estaremos encantados de atenderte. Hipoges es una plataforma inmobiliaria donde podrás acceder a miles de activos inmobiliarios de diferentes tipos como viviendas, locales comerciales, terrenos, nueva obra, tanto a nivel particular como para inversores. Hipoges cuenta con una amplia cartera de activos inmuebles tanto en España como en Portugal y Grecia.

¿Necesitas financiación? Te ofrecemos la posibilidad de financiaciones de hasta el 100% para la compra de este inmueble. Entra en Finanwin.com, haz tu simulación y obtén la mejor oferta para tu Hipoteca de la manera más ágil y sencilla.

dernière modification

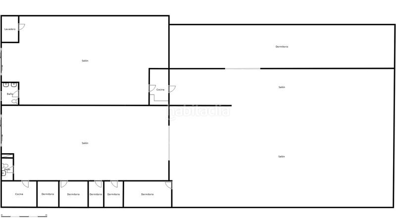
Distribution

  • Surface 936 m2
Annonce: 52793000003183

Lieu

El Juncal - Vallealto

Naviguez sur la carte en cliquant dessus
Nous vous prévenons lorsque nous aurons une annonce comme celle-ci ? Créez votre alerte et nous vous préviendrons par courrier électronique dès qu´il y aura de nouvelles annonces ou lorsqu´elles seront modifiées
 

Contacter Hipoges

Référence de l´annonce habitaclia/LIRE-02947:

Vous verrez le numéro de téléphone après que vous ayez envoyé vos coordonnées à l´annonceur pour qu´il puisse vous répondre.
Le numéro de téléphone s´affichera après avoir contacté
Envoi en cours…