Évaluation sauvegardée !
Vous serrez le seul/la seule à le voir
Commentaire sauvegardé !
Ajoutez votre évaluation et/ou un commentaire pour cette annonce. Vous seul(e) le verrez

Chalet avec chauffage parking piscine dans Marisol Park - Ortembach - Los Almendros Calp

  • 346 m2
  • 4 hab.
  • 3 salles de bain
  • 7.197 €/m2

Esta espectacular villa de lujo, ubicada en uno de las zonas más prestigiosa en Calpe, ofrece una combinación perfecta de sofisticación y comodidad. Gracias a su ubicación privilegiada, podrá acceder a todos los servicios a pie: a solo 15 minutos del centro de la ciudad y de la playa, y a 5 minutos del supermercado más cercano. Diseñada para quienes buscan un estilo de vida exclusivo, esta residencia ofrece el equilibrio ideal entre modernidad, funcionalidad y lujo.


Distribución y Espacios


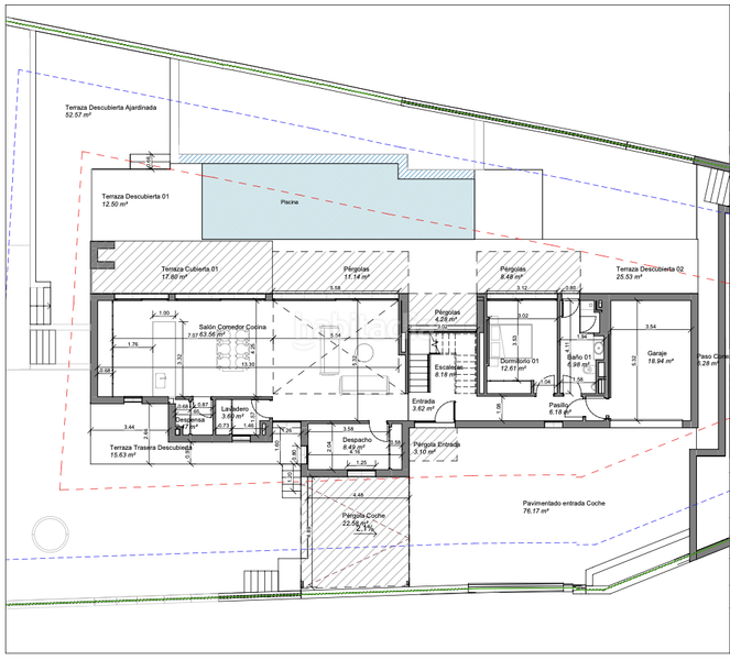
Planta Baja: Elegancia y Conexión con el Exterior


Al entrar, le recibe un amplio salón de doble altura, con impresionantes revestimientos de madera de roble que aportan calidez y sofisticación al espacio. La cocina, hecha a medida y equipada con electrodomésticos Miele de alta gama, cuenta con acabados de primera calidad, ofreciendo un ambiente funcional y elegante.


Desde el salón, se accede a una espectacular terraza con piscina privada, jacuzzi y una zona de relax rodeada por un exuberante jardín tropical, creando un oasis de tranquilidad. Para mayor comodidad, la piscina cuenta con un sistema de cubierta automática, permitiendo mantenerla en perfectas condiciones cuando no está en uso.


En este nivel, también encontramos:



Una pequeña habitación que puede utilizarse como oficina.
Un baño de cortesía con acceso directo al jardín, ideal tanto para la casa como para la piscina.
Un cuarto de lavandería con un innovador sistema de conducto de ropa desde la planta superior.
Un garaje cerrado con capacidad para un vehículo.


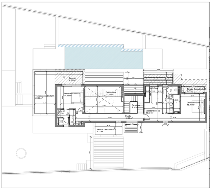
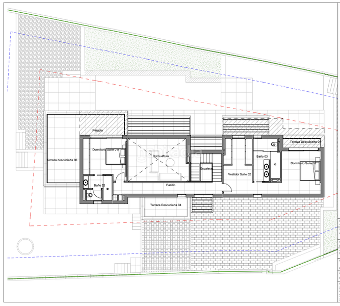
Planta Superior: Privacidad y Vistas Panorámicas


En la planta superior, el dormitorio principal destaca por su amplitud, vestidor integrado y acceso a una terraza privada. Un elegante pasillo conecta con otra habitación en suite, que dispone de su propio baño y acceso a una gran terraza con vistas panorámicas al mar y a la ciudad.


Equipamiento y Tecnología de Última Generación


Esta villa ha sido construida utilizando las más avanzadas tecnologías para garantizar el máximo confort, eficiencia y sostenibilidad:



Sistema domótico: Controle la iluminación, climatización y persianas automáticas desde cualquier dispositivo móvil.
Fachada ventilada, placas solares y sistema de aerotermia, optimizando la eficiencia energética y el respeto al medio ambiente.
Sistema de sonido integrado en toda la vivienda.
Iluminación LED regulable para crear diferentes ambientes.
Calefacción por suelo radiante y aire acondicionado central con control individual en cada estancia.


Esta villa ha sido diseñada para ofrecer una experiencia de vida incomparable, combinando lujo, innovación y una ubicación excepcional.


No pierda la oportunidad de conocer esta magnífica propiedad. ¡Le invitamos a visitarla de día o de noche y descubrir la magia de este exclusivo hogar!

dernière modification

Distribution

  • 4 Chambres
  • Surface 346 m2
  • Terrain 931 m2
  • 3 salles de bain
  • débarras

Caractéristiques Générales

  • Chauffage
  • Piscine particulière
  • Place parking
  • meublé
  • Climatisation
  • Année de construction 2023
  • Certificat énergétique :
    Consumo:
    G
    999 kW h m2 / año
    Emisiones:
    G
    999 kg CO2 m2 / año
Annonce: 52627000000060

Lieu

Marisol Park - Ortembach - Los Almendros

Naviguez sur la carte en cliquant dessus
2.490.000 € Prix de l´annonce
4.325 €/m2€/m2 población
7.197 €/m2€/m2 de l´annonce
Combien seriez-vous disposé à payer?
Voir évolution €/m2 dans Calp
Nous vous prévenons lorsque nous aurons une annonce comme celle-ci ? Créez votre alerte et nous vous préviendrons par courrier électronique dès qu´il y aura de nouvelles annonces ou lorsqu´elles seront modifiées
 

Contacter Gh Costablanca

Référence de l´annonce habitaclia/VC30180:

Vous verrez le numéro de téléphone après que vous ayez envoyé vos coordonnées à l´annonceur pour qu´il puisse vous répondre.
Le numéro de téléphone s´affichera après avoir contacté
Envoi en cours…