Évaluation sauvegardée !
Vous serrez le seul/la seule à le voir
Commentaire sauvegardé !
Ajoutez votre évaluation et/ou un commentaire pour cette annonce. Vous seul(e) le verrez

Maison dans cl pedrera de s an dans Sa Riera-Sa Fontansa Begur

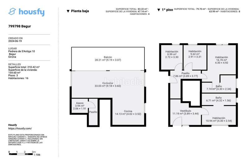
  • 347 m2
  • 4 hab.
  • 3 salles de bain
  • 7.839 €/m2

Housfy vende maravillosa casa de obra nueva en Begur Exclusiva villa recién construida en una de las ubicaciones más privilegiadas de la Costa Brava. Con espectaculares vistas y a tan solo 15 minutos del centro de Begur y a 900 metros de la playa de Sa Riera. Nos encontramos con una vivienda distribuida en 3 plantas y con jardín y piscina privados. En planta baja situamos el salón-comedor, con grandes ventanales que brindan muchísima luz y unas vistas panorámicas, la cocina abierta y totalmente equipada y finalmente un aseo de cortesía . El mismo salón nos da acceso al jardín y a la piscina de agua salada. En la segunda planta, podemos disfrutar de las comodidades de tener 4 dormitorios dobles totalmente exteriores y con vistas al mar y 3 baños completos. En la planta sótano, tenemos un espacio diáfano y que se puede convertir según las necesidades del propietario, lavadero y bodega. Las villas están construidas con los mejores materiales del mercado y con unos acabados de lujo. Paneles solares, aire acondicionado y la mejor tecnología son otras de las virtudes que nos ofrece esta maravillosa casa. Jardines con vegetación autóctona, los desniveles con muros de piedra seca natural de la propia cantera. Comunidad privada con control de acceso y áreas de aparcamiento interiores. Características: - Encantadora casa de 347 m2 construidos sobre una parcela de 925m2 en Sa Riera - En esta casa encontraremos 4 habitaciones y 4 baños, para familias completas. - Coqueta salón-comedor con amplio espacio de luz natural. - Con una apropiada cocina equipada. - Domótica. - Parquet. - Sistema de calefacción y aire acondicionado. - Además dispone de armario empotrado. - Terraza. - Balcón. - Además de un conveniente jardín privado. - Piscina privada de 30m2 Respecto a la ubicacion, está localizada en Girona, en la localidad de Begur. Una vivienda ideal para aquellos que quieran un cómodo espacio donde vivir con todo lo necesario del día a día a un paso de su casa. Sobre nosotros. Housfy es la plataforma integral de servicios inmobiliarios. Nuestra combinación de expertos y tecnología pone al alcance de todo el mundo servicios cómodos, claros y seguros. AICAT número: 7922. Nos encargamos de la gestión y asesoramiento de la compra. ¡Olvídate de todo! Hacemos los trámites por ti. Y, si además necesitas financiación, ponemos a tu disposición un bróker hipotecario para ayudarte a conseguir las mejores condiciones para tu perfil económIco. ¿Tienes alguna duda? Pregúntanos sin compromiso o visítanos en housfy.com

dernière modification

Distribution

  • 4 Chambres
  • Surface 347 m2
  • 3 salles de bain
  • débarras

Caractéristiques Générales

  • Chauffage
  • Piscine particulière
  • Climatisation
  • Année de construction 2023
  • Certificat énergétique :
    Consumo:
    D
    106 kW h m2 / año
    Emisiones:
    C
    20 kg CO2 m2 / año
Annonce: 54539000000053

Lieu

Sa Riera-Sa Fontansa CL PEDRERA DE S AN, 5 .

Naviguez sur la carte en cliquant dessus
2.720.000 € Prix de l´annonce
4.326 €/m2€/m2 población
7.839 €/m2€/m2 de l´annonce
Voir évolution €/m2 dans Begur
Nous vous prévenons lorsque nous aurons une annonce comme celle-ci ? Créez votre alerte et nous vous préviendrons par courrier électronique dès qu´il y aura de nouvelles annonces ou lorsqu´elles seront modifiées
 

Contacter Housfy

Référence de l´annonce habitaclia/799798:

Vous verrez le numéro de téléphone après que vous ayez envoyé vos coordonnées à l´annonceur pour qu´il puisse vous répondre.
Le numéro de téléphone s´affichera après avoir contacté
Envoi en cours…