Favorito y comentario
Maison avec chauffage piscine dans El Montgó Dénia
Caractéristiques principales
- 295 m2
- 5 hab.
- 3 salles de bain
- 5.407 €/m2
Informations détaillées
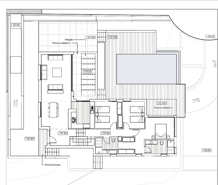
Villa de lujo de nueva construcción con espectaculares vistas al mar, colindante con el Parque Natural del Montgó, ideal para quienes buscan tranquilidad y naturaleza. Con 295 m² distribuidos en dos plantas, ofrece elegancia y confort en cada espacio. La planta principal dispone de amplio salón-comedor, cocina de diseño totalmente equipada, suite principal con vestidor, dos dormitorios y baño. Todas las estancias se abren a terrazas, piscina y solárium con vistas panorámicas. En la planta baja encontramos una sala polivalente (cine, gimnasio o dormitorio), otro dormitorio, baño, lavandería, sala de máquinas y un gran garaje. Construida con materiales de primera calidad y equipada con tecnología avanzada, cuenta con eficiencia energética A, suelo radiante por aerotermia, aire acondicionado centralizado, domótica, persianas eléctricas y alarma. En el exterior, sobre una parcela de 850 m², destacan la piscina infinity iluminada, amplias terrazas y un jardín de bajo mantenimiento. Todo ello a solo 8 minutos de Dénia y 10 de sus playas. [IW]
dernière modification
Distribution
- 5 Chambres
- Surface 295 m2
- Terrain 850 m2
- 3 salles de bain
- débarras
Caractéristiques Générales
- Chauffage
- Piscine particulière
- Climatisation
- Année de construction 2024
Galerie
Lieu
El Montgó
