Évaluation sauvegardée !
Vous serrez le seul/la seule à le voir
Commentaire sauvegardé !
Ajoutez votre évaluation et/ou un commentaire pour cette annonce. Vous seul(e) le verrez

Maison jumelée avec piscine dans Monte y Mar Santa Pola

  • 211 m2
  • 2 hab.
  • 2 salles de bain
  • 2.682 €/m2

Esta villa de obra nueva se encuentra en la exclusiva zona de Gran Alacant (Santa Pola, Alicante).
Las viviendas de esta promoción ofrecen superficies desde 211 m², distribuidas en amplio salón-comedor, cocina moderna, de 2 a 5 dormitorios y de 2 a 3 baños, pensadas para disfrutar del máximo confort y elegancia.
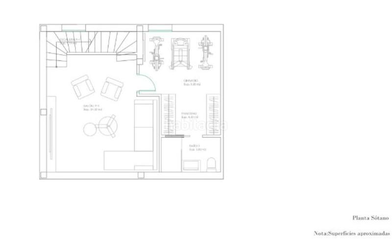
Características principalesSuperficie construida: desde 211 m²Parcela: desde 215 m²Dormitorios: 2 a 5Baños: 2 o 3Piscina privadaGaraje incluido en el precioTerraza y jardínPreinstalación de aire acondicionado por conductosEntrega prevista: 2026Diseño y confort
Este exclusivo conjunto residencial redefine el lujo contemporáneo en la Costa Blanca. Cada villa combina arquitectura moderna, amplitud de espacios y acabados de primera calidad, creando un hogar donde la luz natural es protagonista.
Las viviendas están diseñadas para ofrecer un equilibrio perfecto entre estética, eficiencia energética y bienestar, integrando materiales de alta gama y una distribución funcional que conecta interior y exterior con armonía.
Ubicación privilegiada
Las villas se encuentran en Gran Alacant, una de las zonas más deseadas de la Costa Blanca, por su entorno natural, sus playas y su excelente comunicación.
Muy cerca encontrarás:
Playas de arena fina y aguas cristalinasSupermercados y centro comercialColegios y servicios esencialesAcceso rápido al centro de Santa Pola y al Aeropuerto de Alicante-Elche
Una ubicación ideal para quienes buscan calidad de vida, confort y proximidad al mar durante todo el año.
Precio y disponibilidadDesde 566.000 €, según superficie, extras y características particulares de cada vivienda.Varias unidades disponibles.

dernière modification

Distribution

  • 2 Chambres
  • Surface 211 m2
  • 2 salles de bain

Caractéristiques Générales

  • Certificat énergétique :
    Consumo:
    G
    999 kW h m2 / año
    Emisiones:
    G
    999 kg CO2 m2 / año

Équipement communautaire

  • Piscine Communautaire
Annonce: 42544000002474

Lieu

Monte y Mar

Naviguez sur la carte en cliquant dessus
566.000 € Prix de l´annonce
3.222 €/m2€/m2 distrito
2.682 €/m2€/m2 de l´annonce
17% moins cher que la moyenne*
Combien seriez-vous disposé à payer?
Voir évolution €/m2 dans Santa Pola (Gran Alacant)
Nous vous prévenons lorsque nous aurons une annonce comme celle-ci ? Créez votre alerte et nous vous préviendrons par courrier électronique dès qu´il y aura de nouvelles annonces ou lorsqu´elles seront modifiées
 

Contacter Ybc Group

Référence de l´annonce habitaclia/319465__COMPLEX__319:

Vous verrez le numéro de téléphone après que vous ayez envoyé vos coordonnées à l´annonceur pour qu´il puisse vous répondre.
Le numéro de téléphone s´affichera après avoir contacté
Envoi en cours…