Favorito y comentario
Maison jumelée avec piscine dans Jardines de Alhaurín-Huerta Alta-Fuensanguínea Alhaurín de la Torre
Caractéristiques principales
- 241 m2
- 3 hab.
- 4 salles de bain
- 2.884 €/m2
Informations détaillées
EXCLUSIVO CHALET PAREADO, CON PISCINA, EN ALHAURÍN DE LA TORRE.
Descubre este exclusivo chalet pareado de obra nueva en la zona de Huerta Alta, pensado para que tu familia disfrute de la tranquilidad, la comodidad y todos los servicios a un paso: supermercados, comercios, restauración, colegios, institutos, farmacias, clínicas, parques, zonas de ocio, centros deportivos y mucho más.
La vivienda se entrega terminada y con la piscina.
 Prevista la finalización para diciembre de 2025.
Calidades:
Aislamiento doble en paredes base de espuma de poliuretano y lana de roca y cubierta a base de espuma de poliuretano.
Carpintería  exterior en aluminio color gris antracita con persianas autoblocantes motorizadas  y doble acristalamiento.
Puerta de seguridad en entrada y puertas interiores de alta calidad.
Solería porcelánica.
Preinstalación de climatización por conductos.
Previsión de instalación fotovoltaica.
Distribución y superficie:
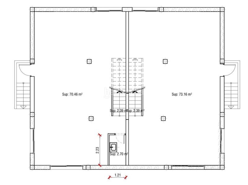
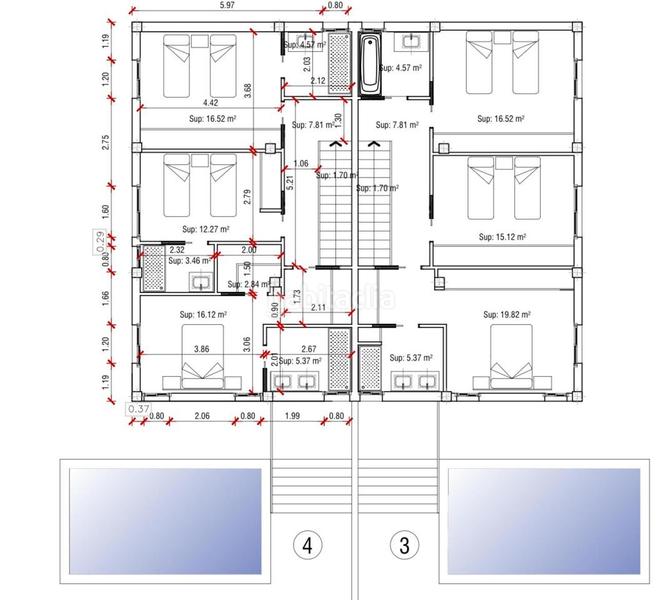
Construida sobre una parcela de 396 m², esta vivienda se distribuye en tres plantas con una orientación sur, ideal para disfrutar de luz natural todo el día:
Planta baja: 71 m² útiles
Planta alta: 71 m² útiles
Semisótano: 75 m² útiles
El proyecto incluye 3 dormitorios y 4 baños, ofreciendo amplitud y comodidad para toda la familia.
Orientación suroeste para un hogar luminoso y eficiente.
Distribución pensada para el confort familiar.
Diseño actual.
Materiales de calidad.
¡Haz realidad el hogar con el que siempre soñaste!
Contacta con nosotros para más información o concertar una visita. Estaremos encantados de ayudarte a dar el siguiente paso.
No existen honorarios de intermediación inmobiliaria adicionales al precio de venta.
No está incluido el IVA (10%).
Somos HOLA! , déjanos cuidarte.
dernière modification
Distribution
- 3 Chambres
- Surface 241 m2
- Terrain 396 m2
- 4 salles de bain
Caractéristiques Générales
- Piscine particulière
- Sans place parking
- Climatisation
- Année de construction 2025
Galerie
Lieu
Jardines de Alhaurín-Huerta Alta-Fuensanguínea Fandango
 
                             
                    
                 
                 
             
			 
			 
			 
			 
			 
			 
			 
			 
			 
			 
			 
			 
			 
			 
			