Évaluation sauvegardée !
Vous serrez le seul/la seule à le voir
Commentaire sauvegardé !
Ajoutez votre évaluation et/ou un commentaire pour cette annonce. Vous seul(e) le verrez

Mas avec parking piscine dans Cap Martí - El Tossalet - Pinomar Xàbia

  • 152 m2
  • 3 hab.
  • 2 salles de bain
  • 5.592 €/m2

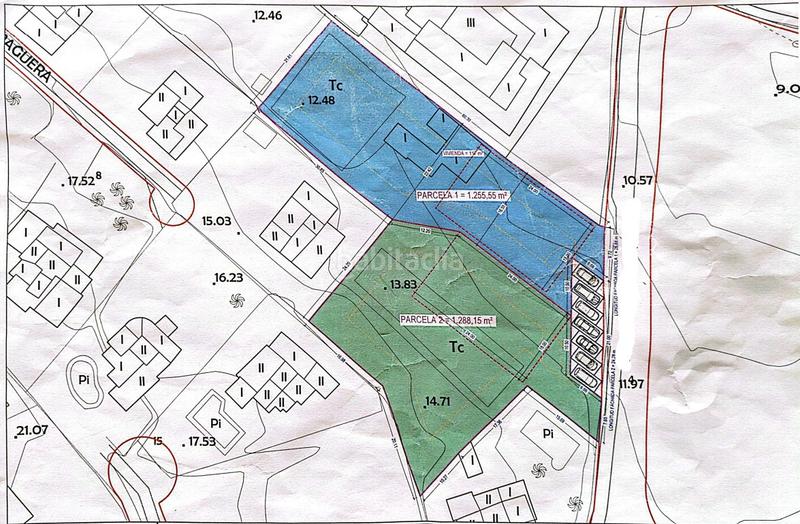
Parcela de 2.600 m2 con casa y posibilidad de división en dos parcelas edificables
Esta parcela se encuentra a muy poca distancia de la playa de arena de Jávea y ofrece una excelente oportunidad de inversión. La parcela se puede dividir perfectamente en dos parcelas edificables independientes de unos 1.300 m2 cada una, aptas para realizar dos villas de lujo.
Actualmente, la parcela contiene una villa de una sola planta con una superficie construida de 152 m². La propiedad cuenta con un salón con cocina abierta, un segundo salón-comedor con cocina cerrada, tres dormitorios, dos baños y un patio con trastero.
Esta parcela se encuentra a poca distancia de la playa de arena de Jávea y goza de una excelente ubicación cerca de todos los servicios. Supermercados, restaurantes, consultas médicas, instalaciones deportivas y otras necesidades diarias se encuentran a poca distancia. Esta ubicación combina la privacidad con la comodidad de una ubicación céntrica.

dernière modification

Distribution

  • 3 Chambres
  • Surface 152 m2
  • Terrain 2600 m2
  • 2 salles de bain
  • débarras

Caractéristiques Générales

  • Piscine particulière
  • Place parking
  • Sans climatisation
  • Certificat énergétique :
    Consumo:
    G
    999 kW h m2 / año
    Emisiones:
    G
    999 kg CO2 m2 / año
Annonce: 28548000002672

Lieu

Cap Martí - El Tossalet - Pinomar

Naviguez sur la carte en cliquant dessus
850.000 € Prix de l´annonce
3.676 €/m2€/m2 población
5.592 €/m2€/m2 de l´annonce
Combien seriez-vous disposé à payer?
Voir évolution €/m2 dans Xàbia
Nous vous prévenons lorsque nous aurons une annonce comme celle-ci ? Créez votre alerte et nous vous préviendrons par courrier électronique dès qu´il y aura de nouvelles annonces ou lorsqu´elles seront modifiées
 

Contacter ARZUAGA INMOBILIAIRA

Référence de l´annonce habitaclia/AR55218:

Vous verrez le numéro de téléphone après que vous ayez envoyé vos coordonnées à l´annonceur pour qu´il puisse vous répondre.
Le numéro de téléphone s´affichera après avoir contacté
Envoi en cours…