Évaluation sauvegardée !
Vous serrez le seul/la seule à le voir
Commentaire sauvegardé !
Ajoutez votre évaluation et/ou un commentaire pour cette annonce. Vous seul(e) le verrez

Rez-de-chaussée 98m2 avec chauffage parking dans Zona Concordia Burjassot

  • depuis 98 m2
  • 1 hab.
  • 1 salle de bain
  • 3.196 €/m2
VIVIENDA SOSTENIBLE EN EL CORAZÓN DE BURJASSOT
Appartient à la promotion

VIVIENDA SOSTENIBLE EN EL CORAZÓN DE BURJASSOT

Esta promoción tiene 13 tipos de logements Voir promotion

Vivienda sostenible en el corazón de Burjassot

aProperties presenta un proyecto residencial innovador que redefine la forma de vivir en armonía con el entorno.

Situado en pleno centro de Burjassot, junto a la calle Liria —principal eje comercial de la ciudad— y a pocos pasos del Ayuntamiento y del campus universitario. Rodeado de espacios verdes como La Granja, Los Silos y la Huerta de Valencia, y con todos los servicios que necesitas a tu alcance.

Una nueva forma de habitar. Vivir bien. Vivir verde.

Este residencial ofrece estudios y apartamentos de 1 a 3 dormitorios, diseñados para quienes buscan un estilo de vida urbano, eficiente y sostenible. Cada detalle refleja un firme compromiso con el medio ambiente:

Construcción en madera técnica, reduciendo al mínimo el uso de materiales con alta huella de carbono como el hormigón o el acero.

Edificio casi neutro en carbono, concebido para minimizar el impacto ambiental desde su diseño.

Energías renovables y eliminación total de combustibles fósiles, como el gas.

Soluciones basadas en la naturaleza, con jardinería planificada y una arquitectura que favorece la luz natural en cada rincón.

Zonas comunes para la convivencia, que amplían tu forma de vivir y fomentan el encuentro vecinal.



Oportunidad de inversión

Nos encontramos en fase inicial de comercialización, con precios de salida especialmente atractivos para quienes apuestan por el valor de lo sostenible y la evolución urbana de Burjassot.

Una ocasión única para invertir en una vivienda con alta proyección de revalorización, tanto por su ubicación estratégica como por su diseño innovador y compromiso ambiental.

Forma de pago:
10% + IVA a la firma del contrato de compraventa.
10% + IVA en mensualidades durante la construcción.
80% + IVA restante a la entrega de la vivienda, prevista para finales de 2025

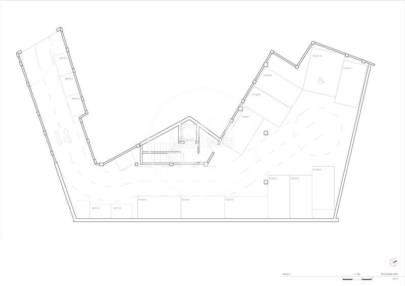
Plaza de garaje opcional no incluida en el precio desde 15.000€+IVA
Plaza de moto opcional no incluida en el precio desde 7.500 €+ IVA

dernière modification

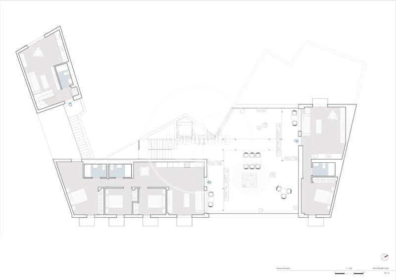
Distribution

  • 1 chambre
  • Surface 98 m2
  • Terrasse 14 m2
  • 1 salle de bain
  • Cuisine Type Office: No

Caractéristiques Générales

  • Chauffage
  • Place parking
  • Climatisation
  • Certificat énergétique :
    Consumo:
    A
    1 kW h m2 / año
    Emisiones:
    A
    1 kg CO2 m2 / año

Équipement communautaire

  • Ascenseur
Annonce: 4737003825344

Lieu

Zona Concordia

Naviguez sur la carte en cliquant dessus
313.200 € Prix de l´annonce
2.291 €/m2€/m2 población
3.196 €/m2€/m2 de l´annonce
Combien seriez-vous disposé à payer?
Voir évolution €/m2 dans Burjassot
Nous vous prévenons lorsque nous aurons une annonce comme celle-ci ? Créez votre alerte et nous vous préviendrons par courrier électronique dès qu´il y aura de nouvelles annonces ou lorsqu´elles seront modifiées
 

Appartient à la promotion VIVIENDA SOSTENIBLE EN EL CORAZÓN DE BURJASSOT

Burjassot
Promoción VIVIENDA SOSTENIBLE EN EL CORAZÓN DE BURJASSOT Burjassot depuis 201.700 €
Livraison: Diciembre 2025
Voir promotion
Autres types de logement de cette promotion

Contacter APROPERTIES REAL ESTATE - VALENCIA

Référence de l´annonce habitaclia/ONV2506003:

Vous verrez le numéro de téléphone après que vous ayez envoyé vos coordonnées à l´annonceur pour qu´il puisse vous répondre.
Le numéro de téléphone s´affichera après avoir contacté
Envoi en cours…