Évaluation sauvegardée !
Vous serrez le seul/la seule à le voir
Commentaire sauvegardé !
Ajoutez votre évaluation et/ou un commentaire pour cette annonce. Vous seul(e) le verrez

Terrain résidentiel dans San José-Los Metales Sagunt

  • 161 m2
  • 1.118 €/m2

Terreno de 161 m² en Venta en Puerto de Sagunto: Una Oportunidad de Inversión Única

Descubre una de las zonas con mayor proyección de futuro en la costa valenciana. Puerto de Sagunto no solo ofrece un estilo de vida inmejorable, con playas de primera calidad y una excelente conexión con Valencia, sino que también se está consolidando como un epicentro de crecimiento económico. La llegada de grandes proyectos como la gigafactoría de Volkswagen ha disparado la demanda de vivienda y la revalorización del suelo, convirtiendo esta zona en un lugar clave para invertir.

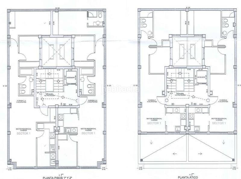
Te ofrecemos una parcela de 161 m2 con un proyecto ya definido para un edificio de 8 viviendas, que incluye un sótano para trasteros (158,50 m² construidos) y plantas baja, primera, segunda y ático para las viviendas. Aunque el proyecto original es de 2007, esto representa una gran ventaja: te da la libertad de actualizarlo por completo, adaptándolo a las normativas y las tendencias arquitectónicas actuales para maximizar su rentabilidad.

Esta no es solo la compra de un terreno, es la oportunidad de capitalizar el crecimiento de una ciudad en plena expansión. **No dejes pasar esta inversión estratégica. Contáctanos para recibir más información y dar el primer paso hacia tu próximo gran proyecto en Puerto de Sagunto.

La oferta está sujeta a cambios de precio o retirada del mercado sin previo aviso. Este anuncio en su conjunto, incluyendo textos, fotos, imágenes o cualquier otro contenido del mismo, no es vinculante dado que la información es ofrecida por terceros y puede contener errores. Se muestra a título informativo y no contractual.

Con nosotros estarás en buenas manos, pertenecemos a AVAI (Asociació Valenciana de Asesores Inmobiliarios). API asociado número 01184 y estamos en el Registro de Agentes de Intermediación Inmobiliaria de la Conselleria de Vivienda de la Comunitat Valenciana con el RAICV 3351.

El precio de venta no incluye los gastos inherentes a la compraventa. Estos comprenden los honorarios de la agencia inmobiliaria por los servicios prestados, los impuestos correspondientes (IVA o ITP, según el caso) y otros costes asociados como los de notaría, gestoría y registro de la propiedad. Para conocer el desglose exacto de los gastos, no dude en consultarnos.

dernière modification

Distribution

  • Surface 161 m2
Annonce: 48582000000063

Lieu

San José-Los Metales

Naviguez sur la carte en cliquant dessus
Nous vous prévenons lorsque nous aurons une annonce comme celle-ci ? Créez votre alerte et nous vous préviendrons par courrier électronique dès qu´il y aura de nouvelles annonces ou lorsqu´elles seront modifiées
 

Contacter Gestiona

Référence de l´annonce habitaclia/ML002:

Vous verrez le numéro de téléphone après que vous ayez envoyé vos coordonnées à l´annonceur pour qu´il puisse vous répondre.
Le numéro de téléphone s´affichera après avoir contacté
Envoi en cours…