
Mas dans Mondariz
Mondariz
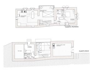
140m2 - 3 Chambres - 1 salle de bain - 2.136€/m2
Casa con historia y encanto en Mondariz - Una joya del siglo XVIII rehabilitada Inmobiliaria Piso E presenta una propie...

Si vous voulez en savoir plus sur la façon dont nous classons les résultats et leurs principaux paramètres Plus d´informations
¿Cuánto vale tu casa?
Realiza una tasación online gratis
Mondariz
140m2 - 3 Chambres - 1 salle de bain - 2.136€/m2
Casa con historia y encanto en Mondariz - Una joya del siglo XVIII rehabilitada Inmobiliaria Piso E presenta una propie...
Mondariz
160m2 - 4 Chambres - 2 salles de bain - 2.406€/m2
Venta de casa de piedra, lista para entrar a vivir con 10.000m2 de finca a 28 minutos de Vigo. Casa de piedra, lista p...
Salvaterra de Miño
50m2 - 1.500€/m2
Descubre el potencial de esta casa para reformar, situada en un terreno llano y amplio de 1.000 m². Con una superficie c...
Mondariz - Balneario
950m2 - 8 Chambres - 4 salles de bain - 174€/m2
Excelente oportunidad de adquirir esta vivienda de casi 1000 m2 con parcela perfecta tanto para vivienda habitual como p...
Neves (As)
800m2 - 306€/m2
Histórica Quinta en Barro- As Neves. Catalogada del siglo XVIII, se encuentra en estado ruinoso y requiere reforma integ...
Ponteareas
Gestionamos la venta de este terreno RUSTICO en la localidad de Moreira ( Ponteareas), cuya superficie es de 464m2, ter...
Mondariz - Balneario
266m2 - 508€/m2
Increíble oportunidad de inversión en Mondariz - Balneario, provincia de Pontevedra! Oportunidad única de adquirir en pr...
Salvaterra de Miño
1.600m2 - 1 pièce - 1 salle de bain - 56€/m2
Se vende esta casa adosada a otras dos en construcción con paredes de piedra, perfecta para los amantes del estilo rústi...
Salvaterra de Miño
236m2 - 352€/m2
GRAN PARCELA CON TERRENO DE CASI 7000 M2 PARA REFORMAR TOTOTALMENTE MUY CERCA DE LA AUTOVIA RIAS BAIXAS SALIDA PONTEAREA...
Mondariz
468m2 - 4 Chambres - 1 salle de bain - 556€/m2
Casa señorial situada en Villasobroso y con muy buena comunicación con núcleos como Ponteareas, Mondariz e incluso Vigo...
Mondariz
140m2 - 3 Chambres - 1 salle de bain - 2.129€/m2
Hay casas de lujo, otras de diseño y despues propiedades como esta, bonita, singular, con historia. Sobre una casa de p...
Mondariz
- 2 Chambres - 2 salles de bain
REF 1921. SE VENDE CASA PARA RESTAURAR EN PIEDRA CON 2 PLACAS Y ESTUPENDAS VISTAS EN SABAXANS-MONDARIZ. FINCA DE 750...
Mondariz
179m2 - 363€/m2
En pleno valle del Rio Aboal en el municipio de Mondariz entre bosques de robles y castaños se encuentra esta propiedad...
Neves (As)
603m2 - 299€/m2
Se trata de una edificación de piedra con forma de U, conocida como Quinta de Barro, ubicada en la parroquia de San Cibr...
Neves (As)
156m2 - 385€/m2
CASA RÚSTICA PARA REHABILITAR EN AS NEVES Te presentamos esta encantadora vivienda de piedra rústica, para rehabilitar,...