Favorito y comentario
Location bureau avec chauffage dans Alhóndiga Bilbao
Caractéristiques principales
- 66 m2
- 15,15 €/m2
Informations détaillées
Oficina en alquiler en Autonomia
Quorum Bilbao presenta una oficina en alquiler en Autonomía, junto a Iparraguirre. Con calefacción y aire acondicionado incluidos.
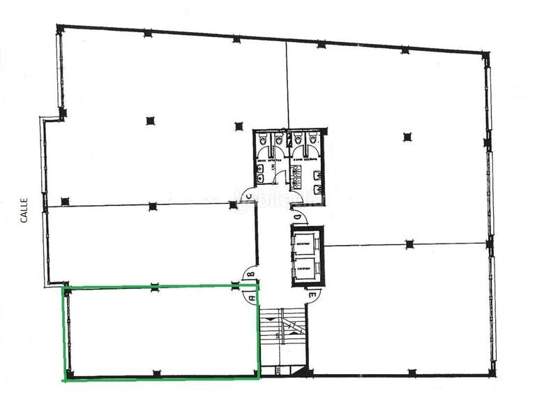
Se trata de una oficina de 66 metros cuadrados, con grandes ventanales a patio de manzana, perfectamente preparada para entrar a trabajar.
Con suelos cerámicos, instalación eléctrica, de red y luminaria completa. Preparado para varios puestos de trabajo.
Gastos de comunidad INCLUIDOS, que incluyen calefacción central, aire acondicionado por bomba de calor, dos aseos comunitarios, vigilancia y dos ascensores.
Posibilidad de adquirir parcelas de garaje con acceso directo desde 130€
A 3 minutos andando de la plaza Indautxu, donde encontramos estación de metro, y a otros 3 de la plaza de la Casilla, con servicio de tranvía.
dernière modification
Distribution
- Surface 66 m2
Caractéristiques Générales
- Chauffage
- Climatisation
Équipement communautaire
- Ascenseur
Galerie
Lieu
Alhóndiga Calle Autonomía