OFICINA DIÁFANA EN ALQUILER CON PARKING EN ZONA CASTILLA.
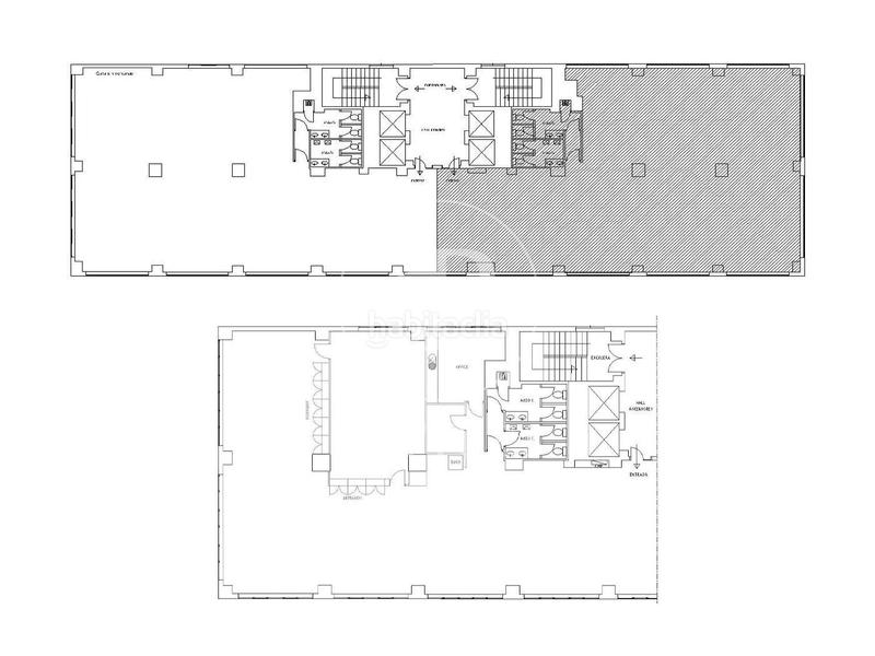
Aproperties ofrece fantástica oficina con una superficie de 375 m², totalmente diáfana para que pueda realizar la implantación que necesite, falsos techos metálicos, suelo técnico para cableado, climatización frío/calor centralizado, con sistemas de control y humectación actualizados, excelente luz natural, control de acceso 24 horas/365 días, parking subterráneo con capacidad para 116 plazas, 4 Plazas de parking concertadas en superficie para visitas y reparto, consta de 4 Ascensores OTIS (3 de alta velocidad, 1 ascensor montacargas).
El edificio Euromor se encuentra en una de las mejores zonas de oficinas de Madrid. Está situado a 200 metros del Metro (Bambú), al lado de la estación de Chamartín (Renfe y Metro) y con acceso desde la M-30.
¿Te imaginas trabajar aquí? Ref. AOM2305003
dernière modification
Texte traduit par un traducteur automatique
Pas de traduction disponible
habitaclia.com n´est nullement responsable des erreurs susceptibles d´être contenues dans les informations de ce plan. L´utilisateur sera responsable de l´utilisation qu´il fera desdites informations.
Nous vous prévenons lorsque nous aurons une annonce comme celle-ci ?Créez votre alerte et nous vous préviendrons par courrier électronique dès qu´il y aura de nouvelles annonces ou lorsqu´elles seront modifiées
Vous ne verrez plus cette annonce.
Vous pouvez toujours le récupérer à partir de la section
"Mon défaussé".
Retour à la liste
34
138
Vous verrez le numéro de téléphone après avoir envoyé le formulaire Contacter l´annonceur
Saisissez le code qui apparaît sur l´image supérieure.
Mes notifications
Mes recherches
mes favoris
Annonces sélectionnées
Alertes d´une annonce:
Nous vous envoyons par courrier électronique les derniers changements concernant l´immeuble sélectionné.
Alertes annonces similaires:
Nous vous envoyons par courrier électronique les dernières annonces en matière d´immeubles et de promotions qui ont été publiées sur habitaclia et qui correspondent à vos critères de recherche
Ajouter aux favoris
Éliminer dans favoris
El Índice de referencia de precios de alquiler es un indicador que publica la Agencia Catalana de la Vivienda y que permite conocer una estimación del precio medio del metro cuadrado de alquiler de una vivienda ubicada en una zona y con determinadas características. También orienta sobre el precio mínimo y máximo que puede llegar a tener esa vivienda.