Évaluation sauvegardée !
Vous serrez le seul/la seule à le voir
Commentaire sauvegardé !
Ajoutez votre évaluation et/ou un commentaire pour cette annonce. Vous seul(e) le verrez

Location bureau avec chauffage dans Dreta de l´Eixample Barcelona

  • 164 m2
  • 1 salle de bain
  • 20,87 €/m2

Oficina en alquiler en Paseo de Gracia, Barcelona

Finca modernista en el corazón de Barcelona

Ubicada en el centro más exclusivo de Barcelona, esta oficina se encuentra en una finca regia modernista que forma parte del patrimonio arquitectónico de la ciudad, en un entorno de gran relevancia empresarial, cultural y comercial. Su posición estratégica, con acceso directo a una de las avenidas más reconocidas de Europa, la convierte en un enclave representativo para compañías que buscan una sede con identidad y prestigio.

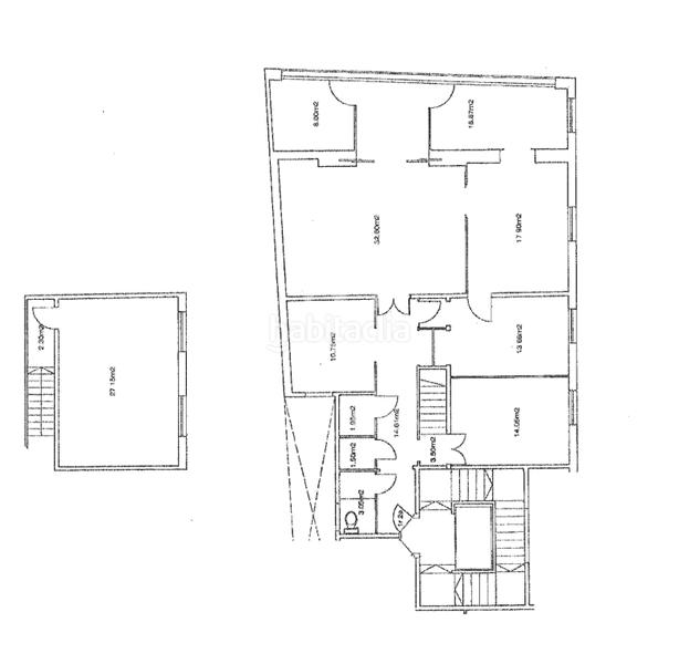
Se trata de un espacio singular que combina el encanto histórico con la funcionalidad contemporánea. Ofrece una superficie principal de 163,5 m² más un altillo de 34,17 m², totalmente exteriores y situados en esquina, lo que garantiza una óptima entrada de luz natural a lo largo del día. La distribución actual incluye una sala de reuniones, tres despachos independientes, una amplia zona diáfana de trabajo, cocina-office, lavadero, baño completo con ducha y aseo adicional, lo que permite una organización práctica y adaptable a diferentes modelos de trabajo.

El edificio conserva los elementos originales característicos del modernismo barcelonés —suelos hidráulicos, techos artesonados, carpinterías ornamentadas y pavimentos de madera— integrados con instalaciones actualizadas que aportan confort y eficiencia. El conjunto crea un ambiente profesional con un marcado valor estético y patrimonial, ideal para empresas que desean proyectar una imagen de distinción.

Excelente conexión mediante transporte público:
Autobuses: líneas 7, 22, 24, H10, V15, 67
Metro: L2, L3 y L4 (Passeig de Gràcia / Diagonal / Universitat)
Tren y FGC: estaciones Passeig de Gràcia y Provença
Parkings públicos cercanos.

Gastos de comunidad: incluidos en la renta.
IBI: no incluido.


* En cumplimiento de la Ley 12/2023 y la Llei 18/2007 informamos que:
Ref. AOB2506005

dernière modification

Distribution

  • Surface 164 m2

Caractéristiques Générales

  • Chauffage
  • Sans place parking
  • Climatisation
  • Certificat énergétique :
    Consumo:
    E
    100 kW h m2 / año
    Emisiones:
    E
    10 kg CO2 m2 / año

Équipement communautaire

  • Ascenseur
Annonce: 30116000001904

Lieu

Dreta de l´Eixample Pg. de Gràcia

Naviguez sur la carte en cliquant dessus
Nous vous prévenons lorsque nous aurons une annonce comme celle-ci ? Créez votre alerte et nous vous préviendrons par courrier électronique dès qu´il y aura de nouvelles annonces ou lorsqu´elles seront modifiées
 

Contacter APROPERTIES REAL ESTATE - OFICINAS

Référence de l´annonce habitaclia/AOB2506005:

Vous verrez le numéro de téléphone après que vous ayez envoyé vos coordonnées à l´annonceur pour qu´il puisse vous répondre.
Le numéro de téléphone s´affichera après avoir contacté
Envoi en cours…