Évaluation sauvegardée !
Vous serrez le seul/la seule à le voir
Commentaire sauvegardé !
Ajoutez votre évaluation et/ou un commentaire pour cette annonce. Vous seul(e) le verrez
11.500 € Prévenez-moi si le prix baisse
a baissé 250 €

Location bureau dans juan ignacio luca de tena 1 dans Madrid

  • 650 m2
  • 17,69 €/m2

OFICINAS EN ALQUILER EDIFICIO PLAZA AMERICA

EL PRECIO ESTA CALCULADO PARA UNA SUPERFICIE DE 650 MTS.
1. EDIFICIO PLAZA AMERICA.
• Superficie total: 8.720 m².



• Plazas de parking: 182 plazas

• Dotación de plazas para vehículos eléctricos: SI.

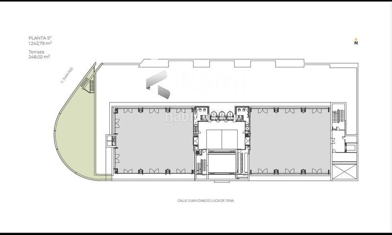
1.408,50m² de terraza exterior

El edificio dispone de la certificación “BREAM EN USO MUY BUENO. • 2 plantas bajos rasante.

• seis plantas de oficinas sobre rasante.

• 3 núcleos de escaleras.

• núcleo central de 3 ascensores panorámicos.

• montacargas desde semisótano a cubierta.

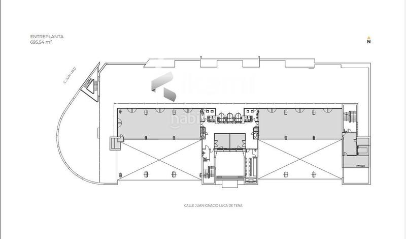
• Planta sótano planta semisótano con 100 plazas de aparcamiento

• Con iluminación y ventilación natural y acceso directo a la plaza Juan Rizi y al hotel Puerta Madrid.

• Planta baja con dos locales con acceso directo a la calle juan Ignacio Luca de tena de 580 m² con 50% de altura libre 5,50 mts y un 50% de altura libre 2,81 mts.

• 1.408,50 m² de terraza exterior con posibilidad de ofrecer 100 m² como servicio común a todo el edificio y 310m² exclusivos para el local oeste de la planta baja.

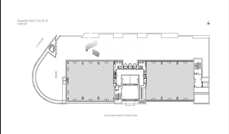
• Plantas de oficinas de 1.300 m² con acceso directo desde el núcleo de ascensores panorámicos.

• Planta De Oficinas sin pilares intermedios.
• sobrecarga de uso 500 kg.

• Techo de aluminio formado por placas post-lacadas y microperforado con luminarias integradas marca Lledó.

• Suelo técnico flotante con cajas integradas con red sucia y red limpia, integrando automáticos diferenciales por cada circuito.

• Sistema de aire acondicionado VRV con control informatizado y una máquina interior cada 35 m².

• Red de conductos 100% metálicos con retorno conducido proporcionando al usuario aire limpio de polvo y microfibras de lana de vidrio.

• Accesos a las plantas de oficinas a través de puertas automáticas de vidrio deslizantes en cada una de las alas.

• Altura libre 2,80 mts.

• Muro cortina con balcón corrido con apertura mediante ventanales de 2,60 mts de altura cada 3,75 mts.

• Todas las plantas dispones de: Dotación de aseos masculinos y femeninos exclusivos en cada planta (TOTAL 5 CABINAS, 3 URINARIOS Y 4 LAVABOS), Montacargas, Sala de rack, Almacén.

• Key facts del edificio:

• Superficie total: 8.720 m².

• Superficie total alquilable disponible: 4.442,06 m².

• Ratio ocupación: 50%.

• Aforo máximo permitido por licencia: 1 persona / 7 m².

• Plazas de parking: Total 92 en s2 + 70 en ss. = 182 plazas de las cuales hay disponibles 13 + 70.

• Dotación de plazas para vehículos eléctricos: SI.

• Servicios, espacios para incluir: cualquier espacio que sea relevante para destacar en el edificio: terrazas, espacios colaborativos etc.:

1.408,50m² de terraza exterior con posibilidad de ofrecer 100 m² como servicio común a todo el edificio y 310 m² exclusivos para el local oeste de la planta baja.

• Sostenibilidad: Certificaciones que tenga:

El edificio dispone de la certificación “BREAM EN USO MUY BUENO.





















dernière modification

Distribution

  • Surface 650 m2
  • débarras

Caractéristiques Générales

  • Chauffage
  • Place parking
  • Sans meubler
  • Climatisation
  • Année de construction 2005
  • Certificat énergétique :
    Consumo:
    C
    127 kW h m2 / año
    Emisiones:
    B
    21 kg CO2 m2 / año

Équipement communautaire

  • Ascenseur
Annonce: 44379000000311

Lieu

Salvador JUAN IGNACIO LUCA DE TENA 1

Naviguez sur la carte en cliquant dessus
Nous vous prévenons lorsque nous aurons une annonce comme celle-ci ? Créez votre alerte et nous vous préviendrons par courrier électronique dès qu´il y aura de nouvelles annonces ou lorsqu´elles seront modifiées
 

Contacter Ikami

Référence de l´annonce habitaclia/1524:

Vous verrez le numéro de téléphone après que vous ayez envoyé vos coordonnées à l´annonceur pour qu´il puisse vous répondre.
Le numéro de téléphone s´affichera après avoir contacté
Envoi en cours…