Évaluation sauvegardée !
Vous serrez le seul/la seule à le voir
Commentaire sauvegardé !
Ajoutez votre évaluation et/ou un commentaire pour cette annonce. Vous seul(e) le verrez

Location local commercial dans Gijón - cl mostoles 3 dans Gijón

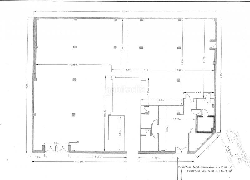
  • 495 m2
  • 2,83 €/m2

LOCAL COMERCIAL EN ALQUILER ZONA NATAHOYO

Local comercial en alquiler zona Natahoyo.
Nos complace presentarles esta excelente oportunidad de adquirir un local en Gijón, más precisamente en la zona de Natahoyo. Este inmueble, con una superficie de 495 metros construidos, está a la venta y representa una inversión potencialmente rentable para usted.
Se encuentra en un edificio construido en el año 1978. Su amplitud es uno de sus puntos fuertes, ya que brinda un amplio espacio para llevar a cabo cualquier tipo de proyecto que tenga en mente.
Ideal para usos comerciales: supermercado, almacén y distribución. Dispone de baños, salida de humos y acceso para vehículos y peatones.
Las posibilidades por su tamaño, ubicación y entorno podría tener diversos usos... Paquetería y ultima milla. Garaje y taller de vehículos. Construcción de trasteros en la zona para su alquiler ó venta. Almacén, oficinas y espacios para formación...
Además, su ubicación es inmejorable. Al estar en la zona de Natahoyo, tendrá a su disposición todos los servicios necesarios en el día a día. No solo eso, también contará con excelentes conexiones de transporte público, incluyendo paradas de autobús cercanas que facilitarán el acceso tanto para usted como para sus clientes.
Cabe destacar que este local cuenta con 495 metros construidos, lo que implica que podrá aprovechar cada rincón de manera eficiente. La distribución del espacio está pensada para garantizar una funcionalidad óptima, brindándole todas las comodidades que necesita para desarrollar su negocio.
No pierda la oportunidad de invertir en Gijón. Su amplitud, ubicación estratégica son elementos que sin duda lo convierten en una opción a considerar. No solo estará adquiriendo un inmueble, estará adquiriendo un proyecto de futuro con múltiples posibilidades.
Estamos seguros de que una visita a este local le impresionará. Podrá contemplar personalmente sus amplios espacios, sus posibilidades de adaptación a diferentes negocios y su excelente ubicación. Asimismo, podrá plantear todas sus dudas y recibir asesoramiento profesional en el lugar.
En resumen, este local en alquiler en Gijón, situado en la zona de Natahoyo, es una inversión segura y rentable. Con una superficie amplia, excelentes conexiones de transporte público y la posibilidad de adaptarlo a su negocio, no cabe duda de que se trata de una oferta que no debe pasar por alto. No pierda la oportunidad y contáctenos hoy mismo para concertar una visita.
No deje pasar esta oportunidad. Contáctenos hoy mismo y concierte una cita para visitar este inmueble.


dernière modification

Distribution

  • Surface 495 m2

Caractéristiques Générales

  • Sans meubler
  • Année de construction 1978
  • Certificat énergétique :
    Consumo:
    F
    48 kW h m2 / año
    Emisiones:
    F
    237 kg CO2 m2 / año
Annonce: 30246000001546

Lieu

El Natahoyo Gijón - CL MOSTOLES 3

Naviguez sur la carte en cliquant dessus
Nous vous prévenons lorsque nous aurons une annonce comme celle-ci ? Créez votre alerte et nous vous préviendrons par courrier électronique dès qu´il y aura de nouvelles annonces ou lorsqu´elles seront modifiées
 

Contacter RK Iglesias inmobiliaria

Référence de l´annonce habitaclia/2494_copia :

Vous verrez le numéro de téléphone après que vous ayez envoyé vos coordonnées à l´annonceur pour qu´il puisse vous répondre.
Le numéro de téléphone s´affichera après avoir contacté
Envoi en cours…