Favorito y comentario
Location local commercial dans helsinki kalea 10 dans Vitoria - Gasteiz
Caractéristiques principales
- 106 m2
- 3,20 €/m2
Informations détaillées
Modalidades: Venta, Alquiler y Alquiler con opción de compra.
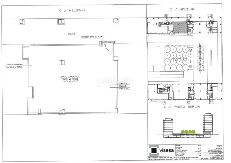
Local de obra nueva, diáfano, sin acondicionar, con muchas posibilidades.
Modalidad de comercialización: Venta en plena propiedad, Alquiler y Alquiler con opción de compra (AROC).
Superficie útil: 106,25 m2u (aprox. ).
Precios orientativos:
Precio de venta: 83.215 € (más IVA).
Alquiler con opción a compra: 339 € (más IVA).
Además en el alquiler o Alquiler con opción a compra las características son las siguientes:
•5 años de contrato.
•Carencia de 6 meses en el pago de la renta por hacer obras de reforma.
•Un 25% de descuento durante 6 meses por cada puesto de trabajo generado (incluido el autoempleo) con un máximo del 50% de bonificación.
•En el alquiler con opción a compra, a la firma del contrato y por tan sólo un pago del 1% del precio estipulado de venta, se consigue:
1. Una opción de compra con una reducción asegurada si se ejecuta la opción de compra del inmueble, descontado del precio de compra además de ese 1% abonado, un importante% de las rentas abonadas hasta el momento de la compra. El % varía según el año que se quiera ejercitar la compra.
2. Asegura por contrato, el precio máximo al que se puede comprar el local, evitando el riesgo de subida de precios en el mercado en los próximos años.
Más información:
Oficina de Atención a la Ciudadanía de Vitoria-Gasteiz
Portal de Gamarra 1A - Bajo (Edificio El Boulevard - entrada por C/ Zaramaga)
01013 Vitoria-Gasteiz.
Tfno:
E-mail:
adi.eus/webvis01-localeslistado/es/?pageSize=10&rowIni=1&idioma=es&idProvincia=1&poblacion=Vitoria-Gasteiz
dernière modification
Distribution
- Surface 106 m2
Caractéristiques Générales
- Sans meubler
- Sans climatisation
- Année de construction 2006
- Exempter
Galerie
Lieu
Salburua - Arantzabela Helsinki Kalea 10
